ALU PVC STEEL

WSF 74/03 Water slot router

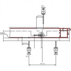
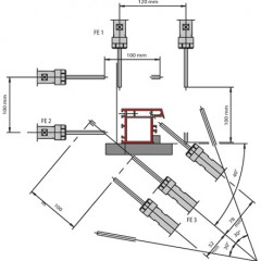
  • Three routing units for automatically routing and drilling water slots and ventilation openings in PVC profiles
  • Routing units have a compact design with automatic feed for routing depth and slot length
  • Wear-free motors with a spindle speed of 17,000 rpm
  • Complete machining of the left and right parts of a sash and frame profile accomplished by pneumatic adjustment of the lower routing unit
  • Length-adjustable stops make it possible to machine profiles of different heights
  • Easy adjustment of the individual units (angle, height and depth) using a scale
  • Pneumatic material clamping
  • The units can be switched on individually
  • Three carbide cutters included as standard (diameter 5 mm)
  • Three routing units
  • Spindle speed 17,000 rpm
  • Drilling travel 100 mm
  • Routing travel 50 mm
  • Cutting height 110 mm
  • Cutting depth 100 mm
  • Transverse travel 195 mm
  • Pivoting of the lower routing unit +/- 30°
  • Power supply 230/400 V, 3~, 50/60 Hz
  • Power output per motor 0.74 kW
  • Compressed air supply 7 bar
  • Air consumption per working cycle 15 l
  • Length 1,000 mm, depth 1,000 mm, height 1,600 mm
  • Weight 280 kg

Other Products